PROJECTARCHIVE_WIP
BMSKK
←
Cylindrical Mesh Topologies
Eco Tower I
→
Eco Tower II
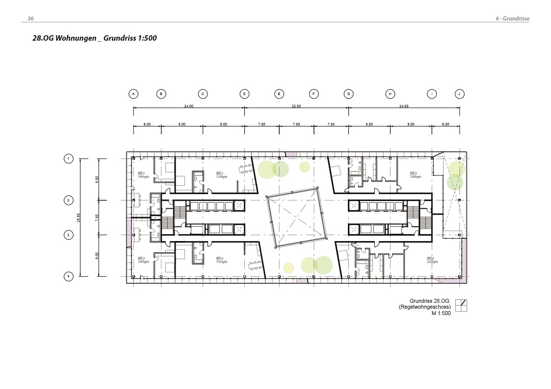
Year
2010
Location
Rotterdam, Netherlands
Type
Design Studio
Team
Bum Suk Ko (Author), Stefan Robanus (Supervisor), Prof. Stefan Behling (IBK2, University of Stuttgart)
Keywords
University, Design Studio, Netherlands, Germany, Parametric, Featured
Visualisations:
Visualisation by Ji Yeon Kim, 2013
Final Structure :
Design Study Progress, Winter Semester 2010: